Wulingshan Eye Stone Spring là tổ hợp spa suối khoáng nóng nằm trong khu vực núi non thuộc dãy Vũ Liệt Sơn, tỉnh Hà Bắc, Trung Quốc. Công trình do Vector Architects thiết kế, được bố trí dựa vào vách đá phía Tây và hướng tầm nhìn ra vùng đồng bằng cùng các dãy núi phía Đông. Khu vực xung quanh có các hàng cây dương, thảm cỏ sậy và một dòng suối nhỏ chảy theo hướng Bắc – Nam. Lối vào tổ hợp được thiết kế qua một cây cầu vòm bằng thép bắc qua suối, dẫn qua khu vực rừng cây trước khi đến sảnh chính. Dự án được vinh danh trong danh sách ELLE Deco International A-List 2025 do Tổng biên tập ELLE Decoration Trung Quốc đề cử, cùng với các công trình đến từ 21 quốc gia khác.

Ảnh: Guowei Liu
Với tôn chỉ bảo tồn địa hình tự nhiên, Vector Architects đã thiết kế công trình theo hướng can thiệp tối thiểu vào cảnh quan. Toàn bộ khối bê tông chính được nâng đỡ bởi 10 cột trụ cắm sâu xuống lòng đất, giúp giảm diện tích tiếp xúc trực tiếp với bề mặt rừng. Giải pháp này vừa hạn chế tác động đến hệ sinh thái khu vực, vừa tạo ra sự kết nối cân bằng giữa kiến trúc nhân tạo và môi trường thiên nhiên xung quanh.

Ảnh: Guowei Liu

Ảnh: Guowei Liu
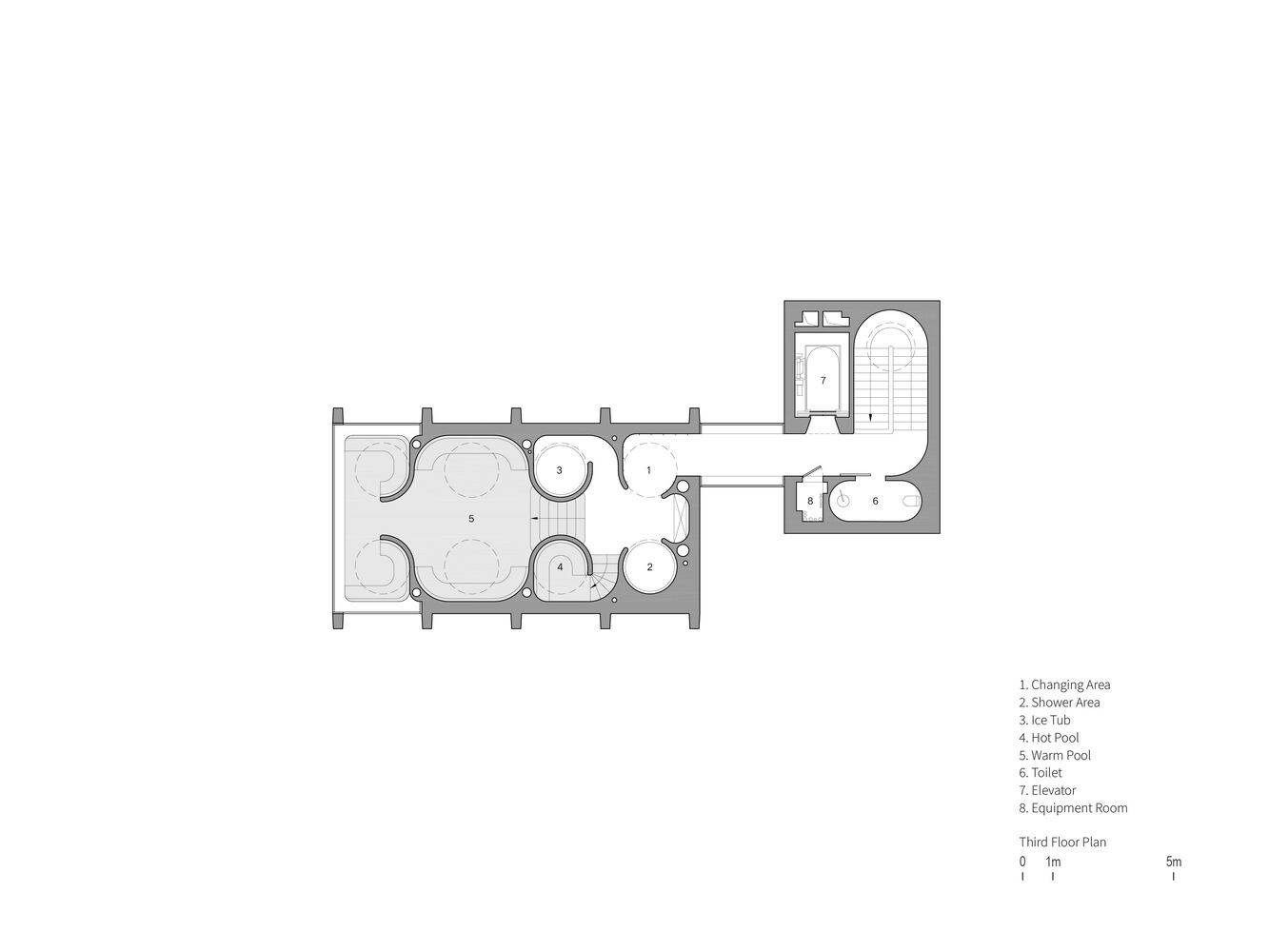
Để giải bài toán về diện tích hẹp và địa hình dốc, các kiến trúc sư đã lựa chọn lối tổ chức không gian theo chiều dọc. Công trình được chia thành hai khối chức năng riêng biệt: Tháp phía Tây dành cho các không gian tắm khoáng và Lõi phía Đông tập trung hệ thống giao thông, dịch vụ. Cả hai được gắn kết chặt chẽ bởi những hành lang cầu nối ở mỗi tầng.

Ảnh: Vector Architects
Diện mạo của công trình mang hơi thở của thiên nhiên nhờ kỹ thuật bê tông băm mặt (bush-hammered). Kiến trúc sư Dong Gong – người sáng lập Vector Architects – cho biết: “Chúng tôi đã đổ thêm một lớp bê tông dày 2-3 cm để thực hiện kỹ thuật băm mặt sâu hơn, tạo nên bề mặt thô nhám, phản chiếu trọn vẹn nét gồ ghề của những vách đá lân cận. Sau đó, một lớp phủ tối màu trong suốt được quét lên, giúp khối bê tông trở nên trầm mặc, tĩnh tại và như hòa làm một với đất mẹ.”

Ảnh: Guowei Liu
Việc phát triển theo chiều cao mở ra một trải nghiệm thị giác đa tầng: khi du khách dần bước lên cao, mối tương quan giữa tầm mắt với tán cây, vách đá và những đỉnh núi xa xăm liên tục thay đổi, đầy bất ngờ. Tầng một là vùng đệm chuyển tiếp với sảnh đón tiếp và khu vực thay đồ được ốp gỗ teak ấm áp. Trong ánh sáng mờ ảo len lỏi qua tán cây dương cao 30m, du khách sẽ tìm thấy sự riêng tư tuyệt đối để chuẩn bị tâm thế thư thái cho hành trình thanh lọc thân tâm.

Ảnh: Guowei Liu
Bước lên tầng hai, ranh giới giữa kiến trúc và thiên nhiên dường như được xóa nhòa. Với hệ kính kịch trần bốn phía, phòng thư giãn này như một đài quan sát lơ lửng giữa tầng lá xanh mướt. Những ô cửa sổ linh hoạt có thể mở toang để đón gió ngàn, thu trọn bức tranh thiên nhiên bốn mùa vào tầm mắt.

Ảnh: Guowei Liu

Ảnh: Guowei Liu
Tầng thượng của spa bố trí các bể tắm trị liệu, được che phủ bởi 8 giếng sáng bê tông cao 8m. Ánh sáng tự nhiên xuyên qua các ống ánh sáng có bề mặt nhám, tạo ra hiệu ứng khuếch tán, cho ánh sáng mềm hơn. Các dải cửa sổ chạy dọc ngang mặt nước giúp du khách có thể vừa ngâm mình trong nước ấm, vừa quan sát vách đá và không gian rừng xung quanh.

Ảnh: Guowei Liu

Ảnh: Guowei Liu

Ảnh: Guowei Liu
Thực hiện: Thiên Thư
Xem thêm:
A-List: Dấu ấn tuyển chọn của mạng lưới ELLE Decoration
Spa Comma Byron Bay: Tái định nghĩa sự tĩnh lặng bằng ánh sáng và màu sắc