Studio Shuhei Goto Architects (Công ty kiến trúc Shuhei Goto) của Nhật Bản đã cải tạo lại một căn hộ và cao ốc văn phòng hơn 40 tuổi và biến nó thành một căn hộ gia đình. Địa điểm này nằm trong một khu dân cư gần thành phố trung tâm Shizuoka, Nhật Bản.

Địa điểm nằm ở shizuoka (tất cả hình ảnh đều của Kenta Hasegawa trừ khi được nêu tên khác)
Có rất nhiều ngôi nhà đang được xây dựng lại ở khu vực đó, vì vậy rất khó để dự báo trước được điều kiện môi trường trong tương lai. Để đảm bảo rằng cư dân sẽ không phải băn khoăn, Shuhei Goto đã tạo ra chiều sâu giữa không gian riêng tư và thành phố, cũng như cảm giác ẩn náu khi ở trong tòa nhà.

Kiến trúc Shuhei Goto tạo ra chiều sâu giữa không gian riêng và thành phố
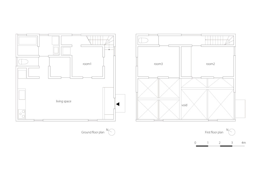
Bên trong, các kiến trúc sư đã tạo ra một khoảng trống bằng cách phá hủy một nửa tầng một. Nhờ đặt các cửa sổ lớn ở phía trên, không gian phòng trưng bày trở nên sáng sủa và ngập tràn ánh nắng, không gian chính của gia đình được đặt ở nhà bếp.

Các kiến trúc sư thiết kế một khoảng trống
Mỗi phòng riêng, ở tầng dưới và trên, đều nhìn ra không gian sống mở. Khoảng trống này đóng vai trò là nơi kết nối giữa bên trong và bên ngoài.
Mỗi phòng riêng đều nhìn ra không gian sống

Ảnh: Shuhei Goto Architects

Ảnh: Shuhei Goto Architects

Ảnh: Shuhei Goto Architects

Kế hoạch

Độ cao và mặt cắt

Lập kế hoạch
Thông tin dự án:
Sử dụng: nơi ở
Địa điểm: shizuoka, quận shizuoka, Nhật Bản
Cấu trúc: thép
Diện tích khu vực: 102.34m2
Diện tích xây dựng: 50,35m2
Tổng diện tích sàn: 85.74m2
Hoàn thành: tháng 8 năm 2016
Thực hiện: Phương Quỳnh – Bài theo: Design Boom

















